鑽石形廳設計攻略,讓空間充分利用!
鑽石廳是香港獨特的屋宇格局,因如鑽石般的五角形格局而得名,但不規則的格局設計衍生出許多問題,使屋主無法有效利用空間。本文將整理鑽石形廳設計的實用資訊,包含:什麼是鑽石廳、鑽石型廳的優缺點、鑽石形廳設計時如何修飾缺點,並提供鑽石廳設計範例供您參考,讓您掌握鑽石廳裝修設計的實用貼士,提升鑽石形廳的功能及美觀。
什麼是鑽石廳?
鑽石廳因客廳內至少有一面斜牆,使客廳呈現如鑽石般的五角形而得名,是香港獨特的客廳格局之一,與呂字廳、日字廳、長方廳和曲尺廳合稱為香港五大主流格局,常見於在1980~1990年代建造的大型藍籌屋苑中。

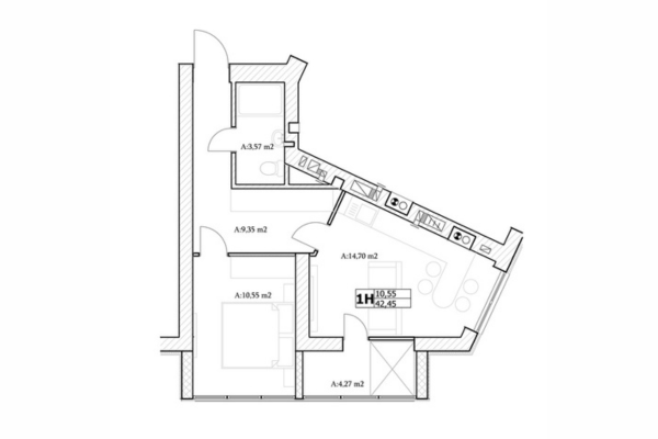
▲鑽石廳樓宇圖則
鑽石型廳的優點
鑽石廳型單位具有以下4個優勢,而成為當時相當受歡迎的空間格局:
視野開闊
為了使各個面向的住宅都能享受屋外的風景,建築公司設計出鑽石型的客廳格局,透過斜角窗創造不同視角,放大客廳向外的視野。
住戶隱密性高
一般方正的住宅格局容易讓對外窗面對其他住戶,使鄰居容易從自家窗戶看清您的家中,而鑽石型廳的對外窗不會與鄰居屋宇正面相對,有效提升住戶隱私。
客廳面積大
相對於方正的客廳格局,鑽石型廳的實用空間較大,部分屋宇甚至將客廳與廚房合併,形成開闊的客餐廳空間。

空間規劃自由度高
鑽石型客廳面積較大且有五面牆,規劃傢俬的擺放位置時能更有彈性,創造出個性化的客廳設計。
鑽石形廳設計時如何修飾缺點?
雖然鑽石廳的面積大、可塑性高,但「三尖八角」的格局使空間難以有效利用,成為現代香港人評價最差的客廳格局,不過,設計師通常會使用以下4種方式修飾格局,使客廳空間更能滿足日常使用需求:
1.利用櫃體調整牆面角度
鑽石型客廳通常擁有一面斜牆,無論是將電視或梳化靠牆擺放,都會導致視角無法平行而影響觀賞,如果客廳的面積足夠,您可以在斜角處擺放三角形的電視櫃,使梳化與電視平行,不僅讓鑽石型客廳看起來較方正,還能活用斜角位,讓客廳擁有更多收納空間。

然而市面上三角形或梯型的收納櫃體數量較少,建議可以使用訂造櫃,讓傢俬公司為您客製化符合鑽石廳的實用櫃體。
2.選用特殊角度傢俬
除了使用訂造櫃體拉直斜牆,您也可以購買具有特殊角度的傢俬,例如:L型梳化或轉角梳化,將梳化沿著面積較大的牆邊擺放,不僅可以讓家人輕鬆調整看電視的視角,還能有效劃分使用空間,使客廳界線更清晰。

3.增加間隔拉直斜牆
如果鑽石廳的面積足夠,您可以直接在斜角的位置增設一面間隔牆,讓客廳恢復方正格局,間隔出的空間可以規劃成書房、儲藏間…等空間,增加額外的使用區域與儲物空間。
4.善用配色分區
香港的鑽石廳型單位通常會採用開放式廚房設計,客廳、餐廳與廚房常整合在同一空間中,使用分區較模糊,也使鑽石廳的視覺無法聚焦,此時您可以利用不同的對比顏色粉刷牆面,不僅能讓使用分區更明確,也能讓客廳視覺更集中。
找專業鑽石廳裝修設計服務就上PRO360找專家!
鑽石廳是香港常見的奇則單位,常被認為是難以設計的空間,但只要善加規劃,鑽石廳也能搖身一變,成為舒適美觀的家居空間,如果您想聘請專業的室內設計師為您規劃鑽石型客廳,PRO360整合全香港上百家經驗老道的室內設計公司在線接案中,服務品質專業、值得信賴,歡迎點選【免費取得報價】提出需求,讓優秀的室內設計師為您打造個性化客廳!

